Добро пожаловать на http://vipplan.ru

Випплан Ковров - это тысячи проектов домов в нашем каталоге!

Вы всегда сможете найти для себя проект дома вашей мечты! Даже если этого не случилось, мы готовы в любую минуту предложить проект индивидуального дома.

Забыли пароль?
Вы еще не регистрировались?

Перейдите по ссылке ниже на страницу регистрации.

Регистрация...

Внимание!!!

В проектную документацию могут быть внесены изменения любой сложности, в соответствии в Вашими пожеланиями!

Полезные статьи

Перекрытия в доме

Перекрытия – одно из важнейших составляющих строящегося дома. Это горизонтальная внутренняя защитная конструкция, разделяющая по уровню смежные помещения дома. По назначению выделяют подвальные, межэтажные и чердачные перекрытия. При проектировании домов и зданий различного назначения, требования к межэтажным перекрытиям определяются их местоположением и функциями разделяемых помещений: надподвальные, межэтажные, чердачные и т.д....

Фундамент под гараж

Обычно фундаменты под гараж делаются из бетонного раствора и заливаются, как монолит. Гаражные фундаменты так же можно укладывать из бетона с применением бутового камня. Такие фундаменты тоже считаются монолитными. В этом случае происходит экономия бетона....

Проекты домов и коттеджей > Каталог проектов домов > Проект дома с эркером и гаражом Vg2332

Проект дома с эркером и гаражом Vg2332

Проект дома с эркером и гаражом
Зарегистрируйтесь

Проект № Vg2332


Техническое описание
Общая площадь: 347.24 м2
Жилая площадь: 91.65 м2
Высота здания: 8.4 м
Размеры дома: 16.58м×20.2м
Кол-во комнат: 4
Цокольный этаж: нет
Гараж: есть
Мансарда: нет

Kонструкция
Фундамент: ленточный монолитный ж/б
Перекрытия: сборные плиты перекрытия
Материал стен: Газобетон

Архитектурный раздел
Конструктивный раздел
Инженерный раздел
АР+КР - 84 000 (Со скидкой 20%)
АР+КР+ИР - 205 450 (Со скидкой 50%)
Проект индивидуального одноэтажного жилого дома с чердаком с размерами здания 16,58 x 20,28 м. Наружная отделка здания – облицовочный кирпич. Фундамент – ленточный монолитный ж/б. Наружные стены – газобетонный блок с воздушным зазором и отделкой облицовочным кирпичом. Внутренние стены – газобетонный блок. Перегородки – забутовочный кирпич. Пол 1 этажа – пол по грунту. Межэтажные перекрытия – сборные плиты перекрытия. Крыша – многоскатная. Кровля – битумная черепица. Окна – металлопластиковые. Лестница – металлическая.
Генплан застройки участка / Паспорт проекта 7000 руб / 10000 руб
Инженерный раздел (полный) 121450 руб (173500 руб)
Смета на строительство 86750 руб
Теплотехнический расчет материалов стен Бесплатно
Стоимость проекта со незначительнми изменениями 96300 руб
Стоимость проекта со средними изменениями* 122400 руб
Стоимость проекта со значительными изменениями** 129300 руб

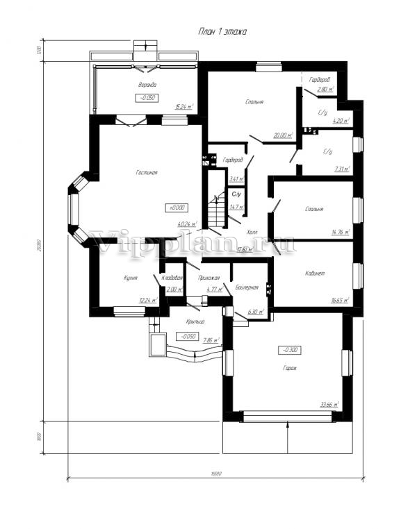
План первого этажа


Прихожая — 4,77 кв м
Холл — 18,8 кв м
С/у — 1,47 кв м
Гардероб — 3,41 кв м
Гостиная — 40,24 кв м
Кухня — 12,24 кв м
Спальня — 20 кв м
Гардероб — 2,8 к м
С/у — 4,2 кв м
С/у - 7,31 кв м
Спальня — 14,76 кв м
Кабинет — 16,65 кв м
Бойлерная — 6,30 кв м
Гараж — 33,6 кв м
Проект дома с эркером и гаражом Проект дома с эркером и гаражом Проект дома с эркером и гаражом Проект дома с эркером и гаражом

Модификации проектов

Внесение изменений и привязка к участку строительства

В любой из проектов от компании VIPplan - Ковров по вашему желанию могут быть внесены изменения в материалы стен, материалы наружной отделки дома, а также будет произведена адаптация проекта под конкретный регион строительства (с учетом грунтов региона, геологических особенностей вашего участка и местных климатических условий) - БЕСПЛАТНО !!! (кроме проектов со скидкой и проектов наших партнеров).

Любой из проектов, размещенных на сайте kovrov.vipplan.ru мы можем выполнить из требуемых вам строительных материалов: ячеистый бетон (газобетон, пеноблок), керамоблок, кирпич, шлакоблок, бетонный блок, дерево (брус, клееный брус), каркасная технология (деревянный каркас, металлокаркас (ЛСТК)).

Фасад дома и его наружную отделку так же возможно выполнить с применением различных облицовочных материалов: структурной штукатурки, (с утеплителем и без), сайдингом (пластиковый или металлосайдинг), фиброплитами, кирпича.

 
6 Избранные
проекты

Доставка проектов по России: Москва (Московская область), Санкт-Петербург (Ленинградская область), Краснодар, Ростов-на-Дону, Ставрополь, Сочи, Волгоград, Новосибирск, Белгород, Брянск, Воронеж, Саратов, Хабаровск, Астрахань, Нальчик, Владикавказ, Екатеринбург, Тюмень, Самара, Нижний Новгород, Казань, Пермь, Уфа, Челябинск, Красноярск, Ханты-Мансийск, Иркутск, Курган, Оренбург, Омск, Томск, Барнаул, Новокузнецк, Кемерово, Абакан, Чита, Якутск, Южно-Сахалинск, Петропавловск-Камчатский и страны ближнего зарубежья: Белоруссия, Украина, Казахстан