Добро пожаловать на http://vipplan.ru

Випплан Ковров - это тысячи проектов домов в нашем каталоге!

Вы всегда сможете найти для себя проект дома вашей мечты! Даже если этого не случилось, мы готовы в любую минуту предложить проект индивидуального дома.

Забыли пароль?
Вы еще не регистрировались?

Перейдите по ссылке ниже на страницу регистрации.

Регистрация...

Внимание!!!

В проектную документацию могут быть внесены изменения любой сложности, в соответствии в Вашими пожеланиями!

Полезные статьи

Где копать колодец?

Водоснабжение за городом - Ковров всегда было проблематичным. При отсутствии центрального водоснабжения остается только один выход – выкопать колодец. Водоносный пласт есть не везде. Как же определить, где копать колодец?...

Проект дома

Строительство дома начинается с подготовительного этапа, основной частью которого является проект. Разработка дизайнерского проекта сопровождается оформлением документов после выбора участка....

Проекты домов и коттеджей > Каталог проектов домов > Проект одноэтажного дома с мансардой и подвалом Vg2210

Проект одноэтажного дома с мансардой и подвалом Vg2210

Проект одноэтажного дома с мансардой и подвалом
Зарегистрируйтесь

Проект № Vg2210


Техническое описание
Общая площадь: 221.26 м2
Жилая площадь: 98.46 м2
Высота здания: 9.31 м
Размеры дома: 17.14м×11.94м
Кол-во комнат: 5
Цокольный этаж: есть
Гараж: нет
Мансарда: есть

Kонструкция
Фундамент: монолитная ж/б плита
Перекрытия: монолитная ж/б плита
Материал стен: Кирпич

Архитектурный раздел
Конструктивный раздел
АР+КР - 64 000 (Со скидкой 20%)
Проект индивидуального одноэтажного жилого дома с мансардой и подвалом с размерами здания 17,14 x 11,94 м. Наружная отделка здания – облицовочный кирпич. Фундамент – монолитная ж/б плита. Наружные стены – рядовой кирпич, экструдированный пенополистирол, облицовочный кирпич. Внутренние стены – рядовой кирпич. Перегородки – рядовой кирпич. Пол подвала - пол по монолитной плите, межэтажное перекрытие - монолитная ж/б плита. Крыша многоскатная. Кровля – металлочерепица. Окна — металлопластиковые
Генплан застройки участка / Паспорт проекта 7000 руб / 10000 руб
Инженерный раздел (полный) 110500 руб
Смета на строительство 55250 руб
Теплотехнический расчет материалов стен Бесплатно
Стоимость проекта со незначительнми изменениями 74450 руб
Стоимость проекта со средними изменениями* 91100 руб
Стоимость проекта со значительными изменениями** 95500 руб

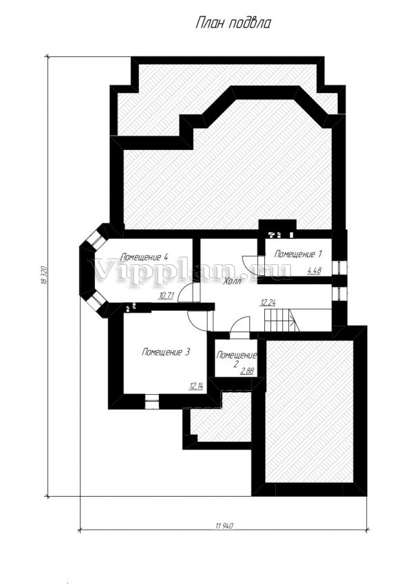
План цокольного этажа


Холл — 12,24 м2
Помещение1 — 4,48 м2
Помещение2 — 2,88 м2
Помещение3 — 12,14 м2
Помещение4 — 10,71 м2

План первого этажа


Тамбур — 3,04 м2
Холл — 8,88 м2
Гостиная — 39,63 м2
Кухня — 10,71 м2
Кабинет — 12,28 м2
С/у — 4,62 м2
Гараж — 22,2 м2

План мансардного этажа


Холл — 9,32 м2
С/у — 4,33 м2
Спальня — 24,10 м2
Гардероб — 9,95 м2
Спальня — 11,52 м2
Гардероб — 12,58 м2
Спальня — 25,97 м2
Проект одноэтажного дома с мансардой и подвалом Проект одноэтажного дома с мансардой и подвалом Проект одноэтажного дома с мансардой и подвалом Проект одноэтажного дома с мансардой и подвалом

Модификации проектов

Внесение изменений и привязка к участку строительства

В любой из проектов от компании VIPplan - Ковров по вашему желанию могут быть внесены изменения в материалы стен, материалы наружной отделки дома, а также будет произведена адаптация проекта под конкретный регион строительства (с учетом грунтов региона, геологических особенностей вашего участка и местных климатических условий) - БЕСПЛАТНО !!! (кроме проектов со скидкой и проектов наших партнеров).

Любой из проектов, размещенных на сайте kovrov.vipplan.ru мы можем выполнить из требуемых вам строительных материалов: ячеистый бетон (газобетон, пеноблок), керамоблок, кирпич, шлакоблок, бетонный блок, дерево (брус, клееный брус), каркасная технология (деревянный каркас, металлокаркас (ЛСТК)).

Фасад дома и его наружную отделку так же возможно выполнить с применением различных облицовочных материалов: структурной штукатурки, (с утеплителем и без), сайдингом (пластиковый или металлосайдинг), фиброплитами, кирпича.

 
6 Избранные
проекты

Доставка проектов по России: Москва (Московская область), Санкт-Петербург (Ленинградская область), Краснодар, Ростов-на-Дону, Ставрополь, Сочи, Волгоград, Новосибирск, Белгород, Брянск, Воронеж, Саратов, Хабаровск, Астрахань, Нальчик, Владикавказ, Екатеринбург, Тюмень, Самара, Нижний Новгород, Казань, Пермь, Уфа, Челябинск, Красноярск, Ханты-Мансийск, Иркутск, Курган, Оренбург, Омск, Томск, Барнаул, Новокузнецк, Кемерово, Абакан, Чита, Якутск, Южно-Сахалинск, Петропавловск-Камчатский и страны ближнего зарубежья: Белоруссия, Украина, Казахстан